16/02/2025
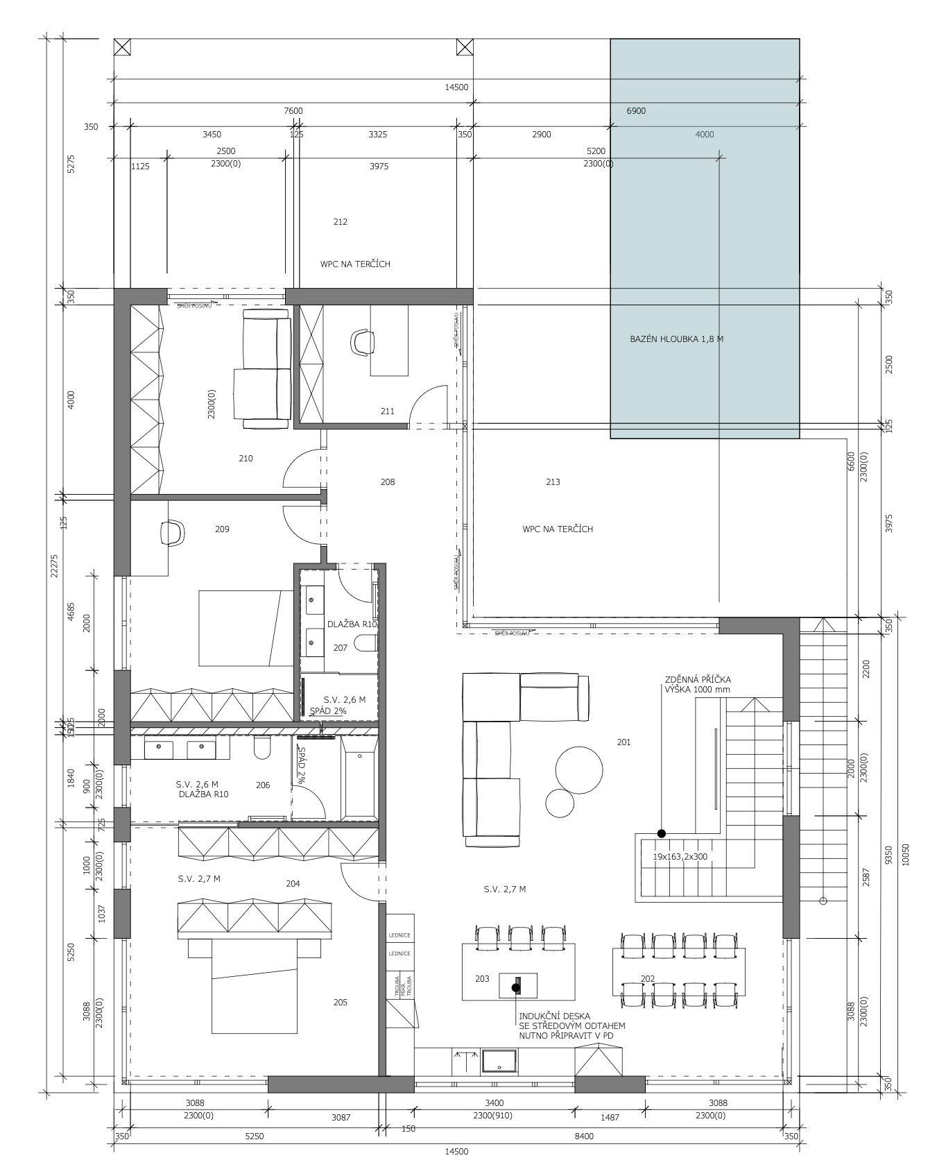
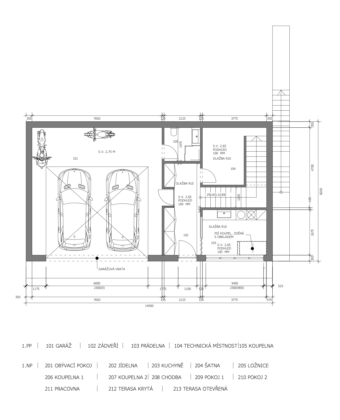
The project of a modern house on a hillside was designed for a young man who wanted to combine a dynamic lifestyle with maximum comfort and privacy. The house takes advantage of the specific location on the slope so that each room offers optimal views, natural light and a sense of connection with the surrounding landscape. The interior combines minimalist modern design with natural materials and clean lines, creating a harmonious and airy space. The emphasis is on functionality, comfort and flexibility so that the house meets both everyday needs and the possibilities of relaxation and hosting. The connection with the exterior is a key element of the project - terraces, large windows and smart layout solutions allow maximum contact with nature and provide a feeling of openness and freedom. The result is a modern, timeless and distinctive home that reflects the owner's lifestyle and his need to combine comfortable living with the dynamics of modern life.












